--   |  设为首页

帮忙装修网

中山

[切换]

中山新房装修案例,一个让人放松有温度的家

来自:中山帮忙装修网 日期:2022-09-15 15:36:32 211795 次 分享到:
导读:
本案业主希望新家是个能让人身心放松,有温度的空间。来看看中山帮忙装修网公司的分享。

顺应自然的禅意,

感受简约无华。

或许不完美才是最完美,

在简单设计中感受岁月本身的美感。

业主故事

The story of the homeowner

_______________________________________

结庐在人境,而无车马喧。在本案的沟通过程中,我们了解到业主是一对异地情侣,对于生活,对于家,他们更希望新家是个能让人身心放松,有温度的空间。

微信图片_20220401170238.jpg

设计师在充分尊重业主喜好的同时,适当地通过空间语言去表现“家”的意义,秉承侘寂风随性自然的设计理念,融合现代功能,使之成为家庭情感的联结。

屋主是一对异地情侣,俩人都很喜欢自然温和的感觉,在整体感觉上倾向于轻松惬意、简约质朴、古朴艺术的生活氛围。

微信图片_20220401170247.jpg

项目实景

The actual view of the project

_______________________________________

客厅

/The sitting room

踏入客厅,阳台的光线引入室内,通透敞亮,开放无拘的格局,摒弃繁杂的装饰,简单利落的线条,清新而明亮,一笔一线,勾勒出随性而自由的模样。

微信图片_20220401170249.jpg

客厅地面通铺木地板,将空间衬托的更加温润浓郁,舒适的沙发,有助于家庭成员之间亲密感的维护,在细节的布置上增添亮点。

微信图片_20220401170251.jpg

屋内装饰采用手工制作的装饰物,古朴而富有沧桑感,细腻的肌理呈现了侘寂美学,沙发后背景墙的灯光,如同画龙点睛,营造出不一样的设计感。

微信图片_20220401170253.jpg

凳子选择了浅胡桃色,清新灵动的颜色不似传统的侘寂风一般过于古朴沉闷,浅淡的材质与色彩却有丰富的空间层次感。

微信图片_20220401170256.jpg

软装的搭配在在汲取了很多侘寂美学的元素后加以改进,是更为灵动的,更清新的轻侘寂风,在其中体现出抱朴守拙的精神意韵来,让人在整个空间中感受最大的放松,伴随着莹莹灯光,享受生活的温暖惬意,过道弧形造型使空间更丰富饱满。

微信图片_20220401170301.jpg

餐厅

/The restaurant

餐桌的选择上采用了颇具年代感的木质装饰制作而成的复古家家具,原木与现代简约的温柔碰撞,用设计将惬意与实用完美保留,在此处烹食饮饮,让工作后的烦乱心境得以舒缓。

微信图片_20220401170304.jpg

比起色彩丰富的常规花艺,侘寂风中的绿植更得清新素雅,修长的花枝,呈现出别样的东方韵味。

微信图片_20220401170306.jpg

厨房

/The kitchen

厨房采用石膏板吊顶,深木色柜体,将视觉重点集于功能区。木色橱柜打造出独有的清冷与沉静氛围,内嵌式的家电极好的利用了厨房空间,干练、整洁。

微信图片_20220401170308.jpg

卧室

/The bedroom

卧室是小夫妻俩休息的私密空间,简约至极才是放松身心的最好选择。摒弃浮华的装饰,深灰色砖体做成的床头背景,自带斑驳肌理与粗旷的自然触感,床头简约艺术灯的搭配下,营造着原生态的质朴美学。

微信图片_20220401170312.jpg

次卧

/Second lie

次卧同色系的软硬装调和,色调与整体家居氛围相吻合,温柔又有力量。简约 书 桌,既有收纳空间又方便日常办公使用,丰富了空间层次,形成强烈的视觉焦点。

微信图片_20220401170312.jpg

书房

/Study

阳光照亮角落的书房,或是在此办公学习,或是静卧阅读,或是弹琴伴奏,不禁让人生出时光缱绻、岁月安然的感觉。

微信图片_20220401170322.jpg

微信图片_20220401170325.jpg

卫生间

/Toilet

微信图片_20220401170327.jpg

以透明玻璃形式处理卫生间干湿之间的关系,空间通透、连贯又独立。

“侘”是在简洁安静中融入质朴的美,

“寂”是时间的光泽。

以原生态的美学,

低调展现关于家的完整性。

微信图片_20220401170329.jpg

▲原始图

微信图片_20220401170331.jpg

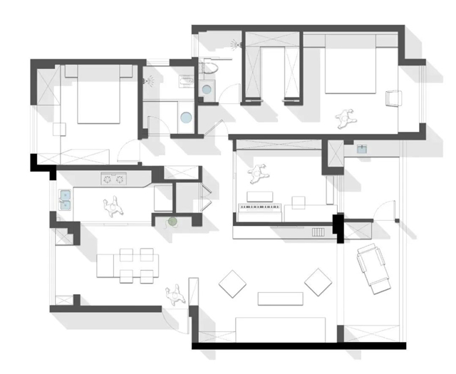
▲平面布置图

户型缺点

1. 功能划分不明确,单空间比例失调,客厅空间过大,餐厅空间又太小;

2. 动线凌乱,整体空间偏右,动线又偏左;

3. 空间配套不完善尺寸不够,无法实现更多的功能收纳结合;

4. 无法实现空间灵活性以及空间与人之间的互动交流;

5. 厨房收纳与操作面积紧凑;

装修预算不够?快来申请装修贷款!月息低至2.5厘。帮忙装修网为解决业主的装修资金难题,特与银行合作推出“装修贷”,一站轻松办理:18824725983 吴先生

长按二维码关注"帮忙装修网",了解更多装修资讯↓↓↓


或拨打免费热线:13822775923

已成功招标53523